武汉城建•天樾
所属分类
所属分类:在售项目
所属分类
返回列表
产品说明
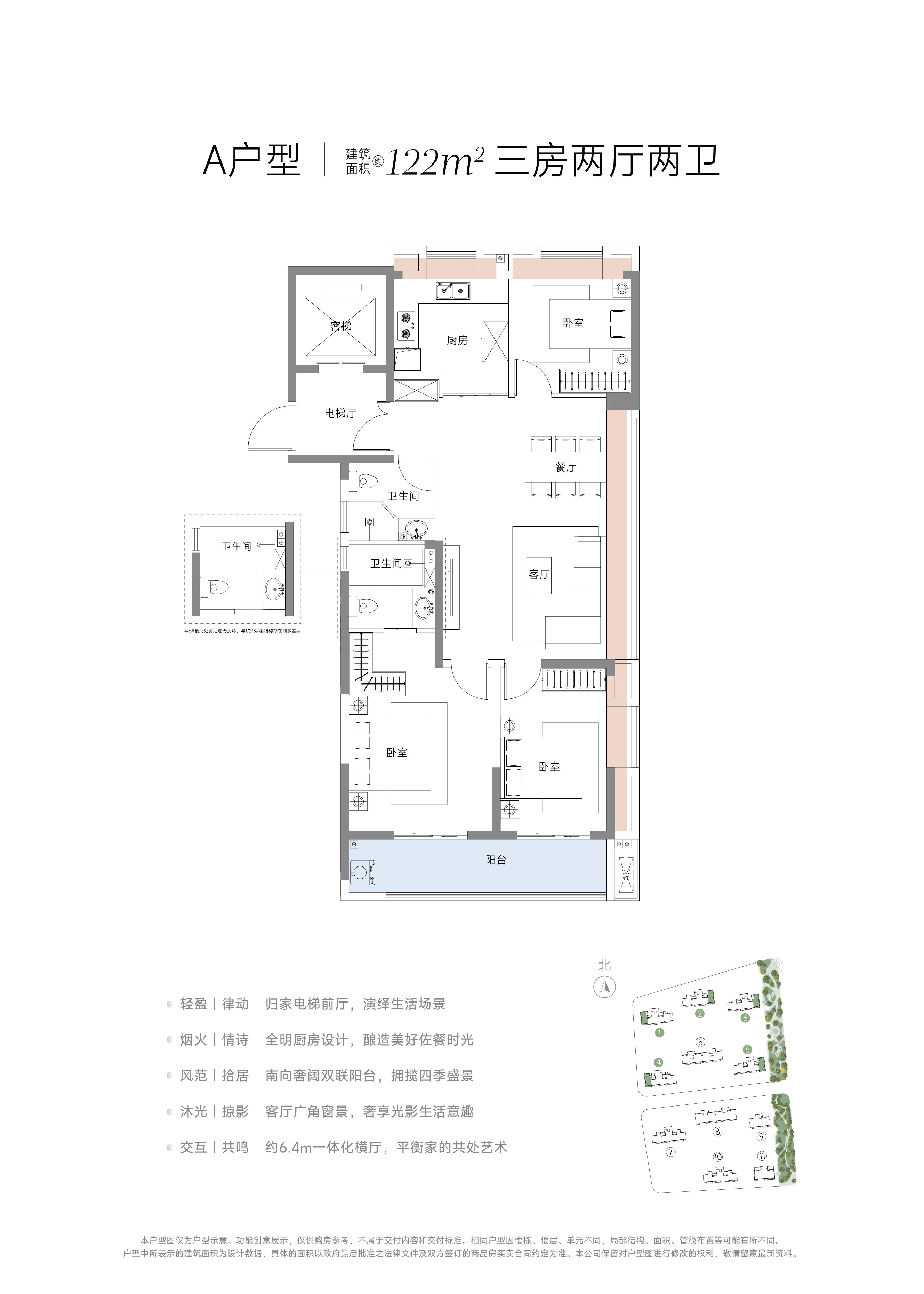
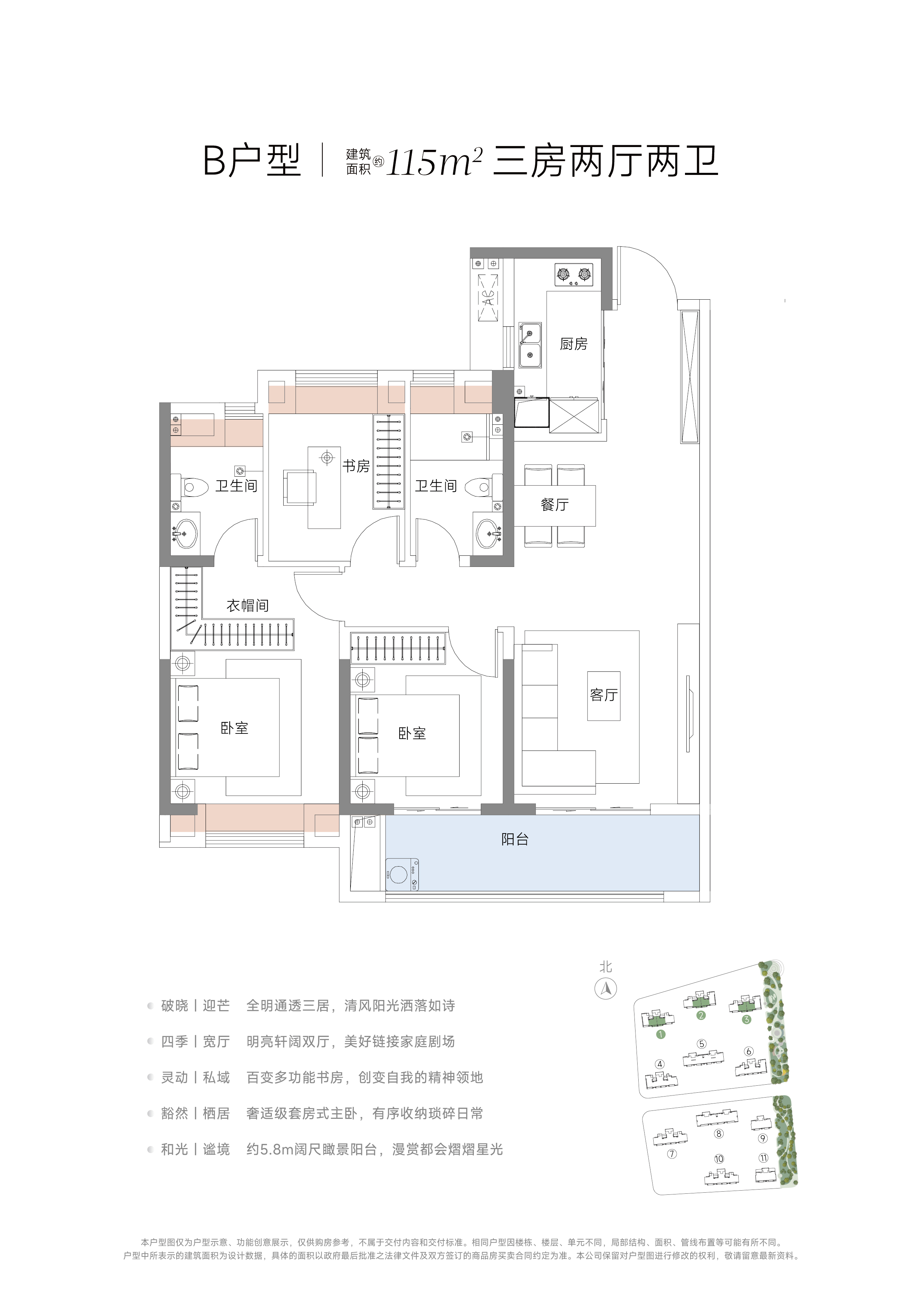
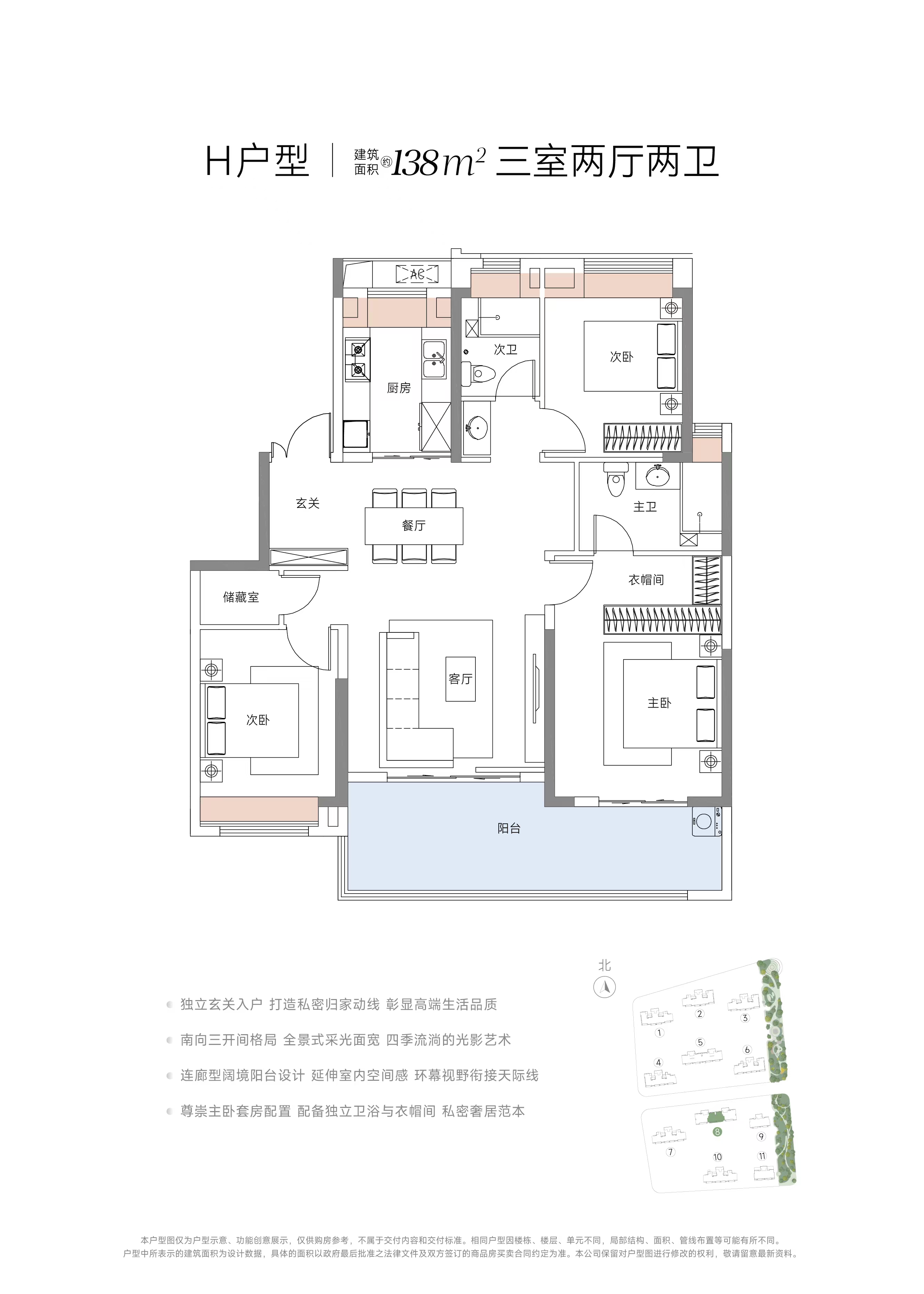
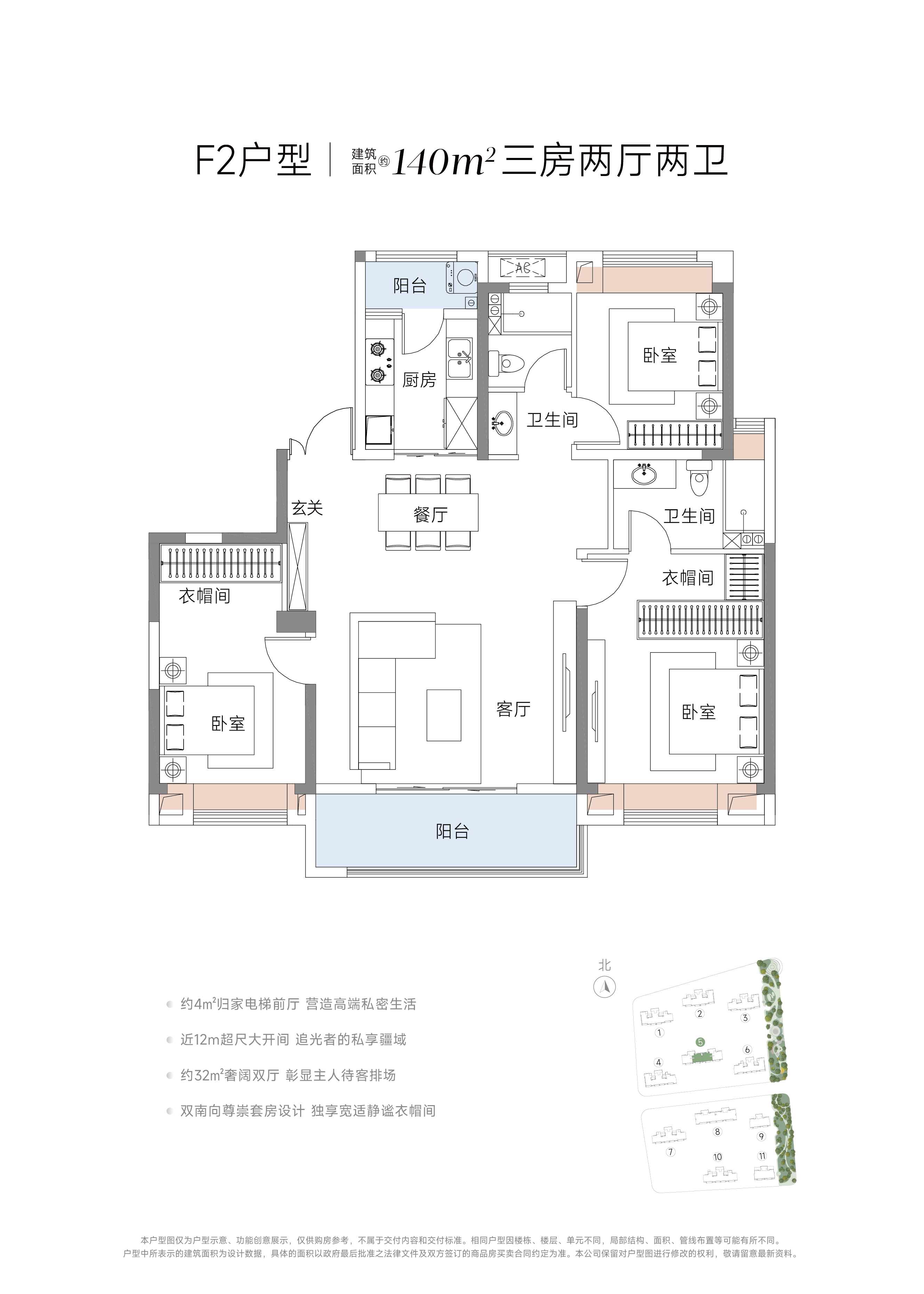
项目户型
项目配套
交通状况
项目区位
武汉城建·天樾是由武汉城建集团,于汉口内环、武广商圈、崇仁路正地铁口打造的约27万万城市焕新范本之作。
项目地处京汉大道与崇仁路交汇处,坐拥“四横三纵一轨”快速路网,步行至地铁1号线崇仁路站A出口仅约80m,约10分钟即达国广商圈,近享K11、武商MALL、恒隆广场等城市TOP级商业配套资源。约1.5公里范围内可享同济医院、协和医院等顶级医疗配套、周边优质教育资源丰富,崇仁路小学、武汉十一崇仁初级中学、武汉市十一中学等名校环绕,打造家门口12年一站式目送优质教育圈。
项目分B\C地块开发,其中C地块作为武广同济1公里生活圈,首个准四代花园住区,打造建面约99-172平三至四房全周期生长产品,以高得房率赋予空间更多延展性,丰富多功能面积段,满足一生所需。项目圈层纯粹、高端,以周边老师、医生及政府部门高知精英客户为主。
武汉城建·天樾始终践行“好房子”、“房子会生长”理念!从套内空间的可拓展性,到场景化设计,再到全生命周期适配,每一个细节都暗藏巧思,以全周期服务配套、好房子产品力,定义汉口内环改善人居标杆。



关键词:
建筑面积
交通
汉口内环
住宅
便利
上一个
武汉城建•金地|和悦
下一个
武汉城建•悦享湖璟
















